對于大部分室內空間而言,照明墻對空間的視覺感知起到了重要的作用。照明墻的明暗決定了你是否能夠感受到所處的空間“足夠大”,以及這樣的視覺感知是否舒適。怎么用索樂圖導光管來設計自然光照明墻呢?
在一些藝術類的場館的墻上總會有一排用來增強效果的射燈,其實,設計師可以考慮使用自然光替代原本的射燈來創造出這種效果的。從視覺感受而言,自然光更能真實地反映作品原本的色彩和意境。
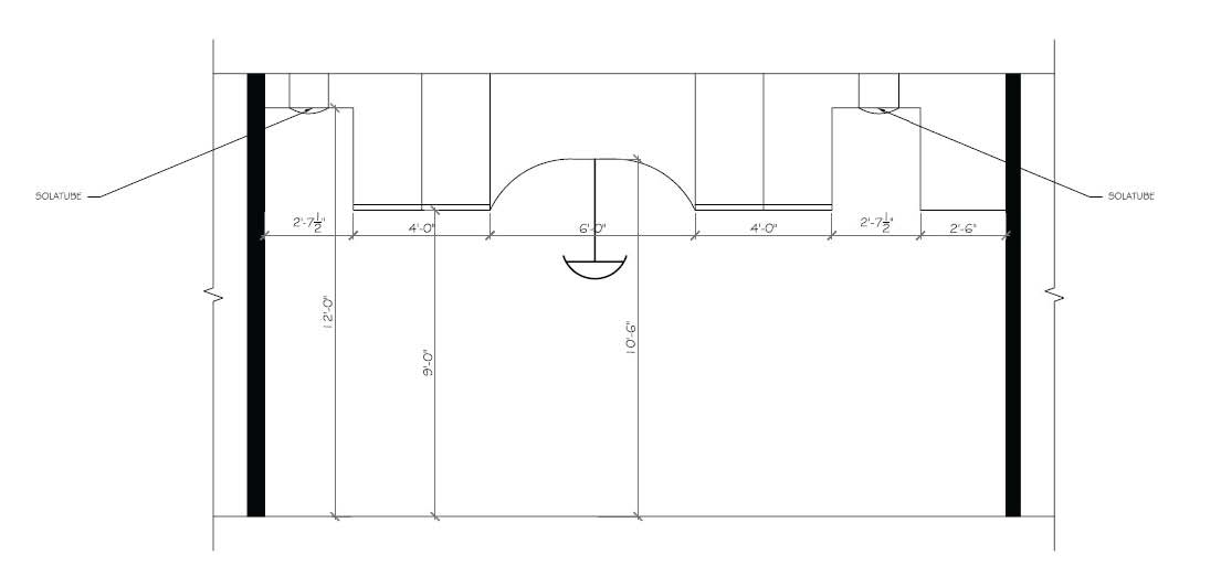
可能會用到的工具:
·主件:索樂圖BrightenUp?明亮系列290DS
·選配件:電燈組件,日光調節器
可能的解決方案:
以索樂圖產品的管道直徑作為基準來確定槽口的直徑,吊頂高度,產品間隔,基于這樣的計算來設計,并實施建造。
注意事項:
·如果想要控制亮度來突顯不同效果的話,一定要安裝日光調節器,靈活控制光線強度。
·如果還想要在夜間使用的話,索樂圖BrightenUp?明亮系列290DS是可以加裝電燈組件的,晚上也能烘托藝術氣氛。
·為了最大限度地保持墻面燈光的均勻度,兩套日光照明系統的中心距最好不要超過吊頂高度。
欲了解更多導光管采光系統詳情,可點擊:http://m.howjianfei.cn/products/bright.html,免費咨詢熱線:400-8866-941.

咨詢熱線
400-8866-941
蘇公網安備 32059002002301號